Architect Firm: Studio Lotus
Principal Architect: Ambrish Arora, Sidhar-tha Talwar
Design Team: Yatin Tokas, Somik Beura, Raunak Raj, Subrata Ray, Shamik Chatter-jee, Mohit Chopra
Location: Coimbatore, India
Area: Phase-1: 11,148 sq. m, Phase-2: 2,787 sq. m
Completion Date: April 2023 (Phase-1), September 2024 (Phase-2)
Photography: Suryan and Dang
In an era marked by rapid urbanization and greenfeld development, India's cities are grappling with the challenge of vehicle-centric planning and a critical scarcity of genuine communal spaces.
Against this backdrop, a cluster of defunct cotton mills has been given new life—and a new purpose. Formerly home to Lakshmi Mills, one of India's oldest yarn and fabric manufacturing companies, the iconic site at a major urban node is now the focal point of a massive redevelopment initiative. This project exemplifes the potential of adaptive reuse and placemaking, revitalizing underutilized urban areas and fostering a deeper sense of connection between people and their cities.
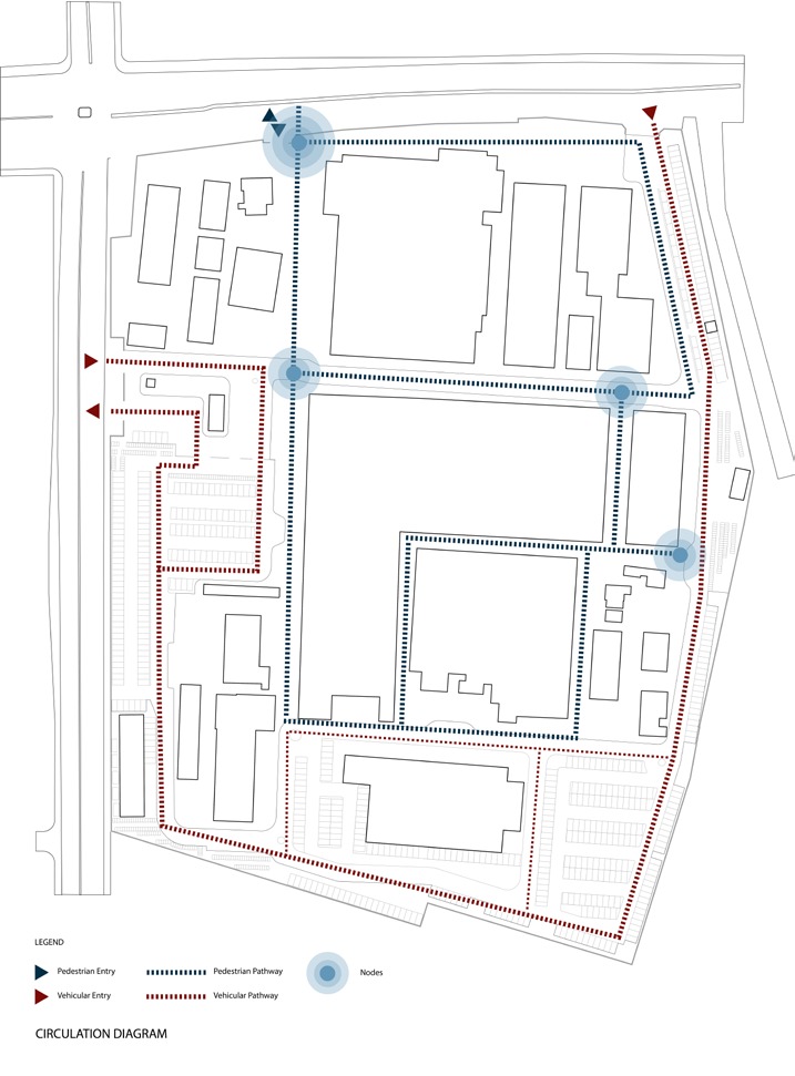
Straddling a major trafic artery, the 84,984 square meter site functions as a walkable community hub with a host of public functions. A visually permeable boundary wall was designed to blur the lines between the precinct and the surrounding neighbourhood. Specific structures and sheds were earmarked for demolition or restructuring to enhance circulation and functionality, while vehicular access was restricted to the periphery to prioritize walkability and create a pedestrian-friendly environment. Open green areas and avenues lined with shade-giving trees have been integrated into the design scheme as a counterpoint to the site's industrial landscape, ofering respite from the urban bustle. Secondary walkways have been reinforced, linking public nodes and providing diverse routes for circulation, further encouraging exploration and discovery. Wayfinding totems are thoughtfully placed to improve connectivity, while historical accounts and plaques elevate the experience by facilitating guided narrative walks and tours.
Studio Lotus' approach towards revitalization is driven by a deep commitment to honoring the mills' original architectural features and quirks, including the industrial shell, existing roofing system, and structural elements. Exposed brick walls and steel beams complement contemporary finishes, creating a unique blend of old and new that speaks to the site's industrial heritage.
The phased redevelopment has converted 48,562 square meters of the 84,984 square meter site into a bustling hub of activity, attracting an average of 2,500-3,500 visitors on weekdays and swelling to 6,000-10,000 on weekends. Anticipating this level of engagement, ample parking provisions were incorporated from the outset, ensuring a seamless visitor experience. Anchored by a 11612 square meter Lulu Mall, the precinct hosts the first Starbucks in Coimbatore, several international brands, and a curated selection of local businesses. The ongoing development of an 11148 square meter indoor street market promises to further solidify Lakshmi Mills as a vibrant epicentre of commerce and culture in Coimbatore. Newly established businesses have reported a 15-20% increase in sales compared to initial projections, indicating their substantial contribution to the revitalization of the area.
Proactive programming and placemaking strategies have been integral to the project from the outset. Even as the renovation progresses in the third phase, the precinct remains a dynamic, ever-evolving space. Plans for a container food park, outdoor screening areas, and interactive kiosks promise to enrich the visitor experience further. As the project progresses, it continues to emphasize the ideas of community, sustainability, and architectural innovation, promising a vibrant and beloved destination for generations to come.



loading......