Architect Firm: SPACE | STORY | STUDIO
Principal Architect: Pipol Likanapaisal
Design Team: Apichart Rojthoranin, Bun-cha Layangkoon
Location: Nonthaburi, Thailand
Area: 1,000 sq. m
Completion Date: Febuary 2021
Photography: Nattakit Jeerapatmaitree
Tucked within a quiet residential enclave in Nonthaburi, just northwest of Bangkok, Baan Nonn ofers a thoughtful reinterpretation of Thailand’s traditional extended-family home. Designed for three generations living under one roof, the house gracefully balances privacy, connectivity, and cultural continuity—drawing inspiration from the spatial logic of vernacular Thai cluster homes, while embracing the needs of modern life.
The project began with the complete renovation of a 20-year-old two-story home situated on an 800-square-meter plot. Rather than approaching it as a single residence, the design team envisioned a contemporary compound that could evolve with the family over time. Inspired by the open-air clusters of rural Thai houses, the plan introduces multiple interconnected volumes centered around a shared courtyard—ofering both visual openness and fexible living arrangements.
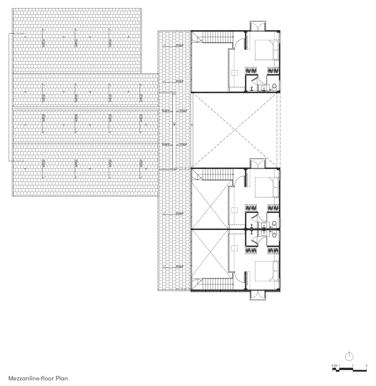
At the heart of the home lies a tranquil courtyard and swimming pool, enclosed by a large L-shaped building. This spatial configuration not only creates a sense of retreat within the dense urban context, but also enables passive ventilation, soft daylight, and spontaneous interactions among family members. The original structure has been repurposed as a communal zone, housing a reception area, gym, kitchen, and dining space on the ground floor, while the upper level serves as a private residence for the elder generation.
A new wing was added to accommodate three self-contained residential units, each with its entry via a covered platform that weaves along the house’s exterior. This outdoor circulation strategy fosters a gentle separation between generations while preserving a sense of togetherness—essential to Thai family culture, where caregiving and connection are central to daily life.
Materially, Baan Nonn refects a hybrid approach that mergesdurability with warmth. The architects avoided traditionalhardwoods in favor of modern alternatives more suitable for thelocal climate and lifestyle. Faux-wood aluminium siding,engineered wood panels, and clear-coated brickwork wereselected for their low maintenance, thermal performance, andaesthetic resonance with traditional Thai houses. Aluminium-framed doors and windows mimic the visual softness of timber but perform to contemporary standards, while slim trims and cleandetails emphasize simplicity and coherence throughout.
The structure itself employs a mix of steel framing, masonry, andlight cladding—allowing for spatial openness while ensuring thermal comfort and long-term resilience. The use of framed voids and shaded walkways refects a keen sensitivity to the tropicalcontext, encouraging airfow and reducing reliance on airconditioning.
The interior layout encourages interaction without compromisingcomfort. Open-plan living and dining areas ofer fexibility, while a central foating staircase doubles as an informal social node. Aglass elevator connects both levels, providing accessibility forolder family members and a visual anchor across the courtyard. At the rear of the plan, the kitchen becomes a symbolic center—where meals are prepared and shared, anchoring the emotionalrhythm of the home.
Baan Nonn is more than a renovation; it is a reinterpretation of cultural values through architectural form. By weaving together tradition and innovation, the house stands as a quiet manifesto for the enduring strength of Thai family life. In doing so, it preserves the essence of intergenerational living—proximity without pressure, privacy without disconnection—and refects how architecture can be both a mirror of memory and a stage for the future.



loading......