Landscape Architecture Firm: Bunga Design Atelier
Principal Designer: Mior Aizuddin FAHMI
Design Team: Mohamad Al-HAFIZ, Aliqhwan AZRAEI, Nik Nur AZLIN, and few other students / volunteers / strangers
Location: Kuala Lumpur, Malaysia
Area: 14.86 sq.m
Completion Date: 2023
Photography: Bunga Design Atelier
A temple is a place of sanctity and devotion, created specifcally for the act of worship. It serves as a sacred space where individuals seek solace, refection, and connection, not only with the divine but also with one another. In this spirit, Rambu(T) Rambu(T) emerges as a unique architectural installation that cherishes and honors the essence of togetherness, a celebration of unity, friendship, and mutual understanding among people.
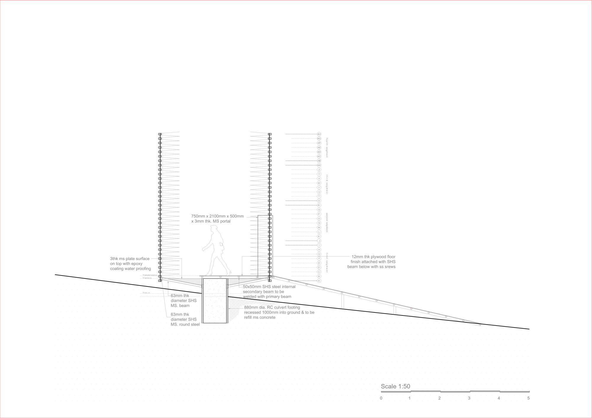
Situated within the expansive landscape of Titiwangsa's urban park in Kuala Lumpur, Malaysia, Rambu(T) Rambu(T) is not merely a structure, it is an outdoor sculpture designed to ofer a serene retreat amid the bustling city. Anchored by an 880mm-diameter concrete-flled culvert embedded into the ground, this seemingly modest yet profound temple rises to a height of 4m. At its entrance, a 4m-long ramp extends outward, serving as a welcoming invitation to visitors, urging them to step forward and become part of the space. This invitation is not just physical but symbolic, an open call to immerse oneself in an experience of contemplation and connection.
Upon ascending the ramp and reaching the core of the installation, visitors fnd themselves in an environment unlike any other. The interior, enveloped in stillness and simplicity, gently encourages visitors to pause and refect. This quiet emptiness invites a moment of introspection while also fostering an awareness of others who share the space. In this shared silence, a subtle yet meaningful sense of connection emerges, reminding visitors of the quiet strength found in unity.
What makes Rambu(T) Rambu(T) particularly distinctive is its unconventional choice of materials. The primary component of the sculpture is a simple yet universally recognizable household item in Malaysia, the 'penyapu lidi' or broomstick. This choice posed an initial challenge, as broomsticks are not conventional building materials. A creative and economical solution was devised to transform them into a functional architectural element. Paper tubes were utilized to form baton-like components, onto which precise puncture marks for metal rods were mapped out. Once assembled, these elements formed a strong diagrid structure emerging with no beginning or end, a perfect circle. This formation not only embodies unity but also serves as a visual metaphor for the seamless connection between people and communities.
The construction of Rambu(T) Rambu(T) was a collaborative efort, staying true to the ethos of Do-It-Together (DIT). A diverse group of talented individuals came together to bring the vision to life, ensuring representation across various demographics. This collective efort emphasized the importance of inclusivity, reinforcing the notion that the temple was made not just for a singular group but for everyone. With a large number of participants involved, it became essential to establish a clear and efcient system of coordination. Efective communication and organization ensured that each contributor was aligned with the common goal, resulting in a cohesive and meaningful outcome.
Rambu(T) Rambu(T) is more than an architectural feat, it is a testament to the power of unity and shared purpose. It stands as a reminder of the sanctity of human connection, inviting visitors to experience togetherness in its purest form. Made together and to be appreciated together, the sculpture will sit in its chosen context for years to come, in the hope that visitors will leave with a new understanding of how precious and sacred our unity is.



loading......