Architecture Firm: DRTAN LM Architect
Architect: TAN Loke Mun
Year Completed: 2022
Land size: 150.0 sq.m
Built-up: 545.5 sq.m
Photographer: LIN Ho
The Urban Museum at Jalan Bedara or Ur-Mu is a purpose-built contemporary art museum that features selected artworks and eclectic objects from the collection of a private art patron. Located in one of the last remaining residential areas in the Golden Triangle, it is right in the heart of the city centre. Ur-Mu opened its doors to the public in May 2022.
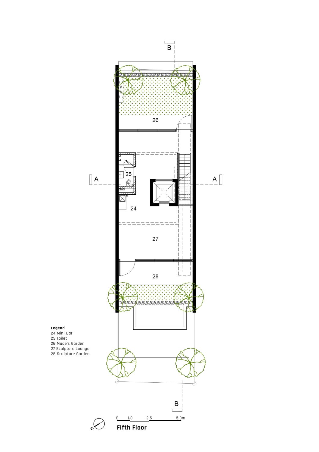
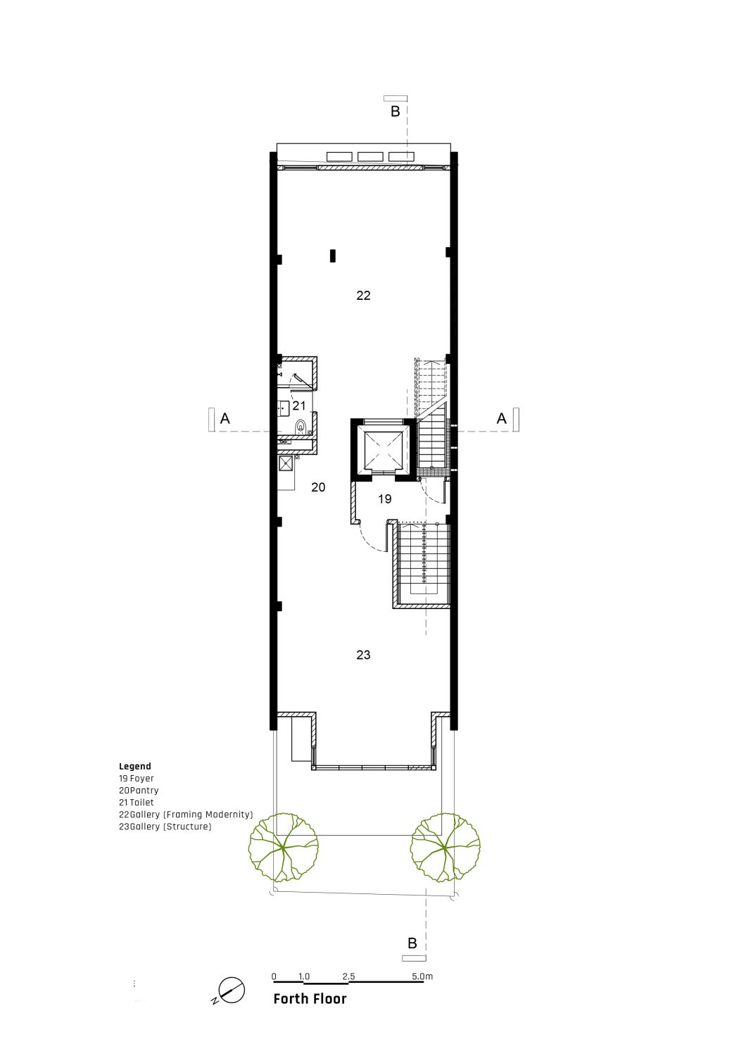
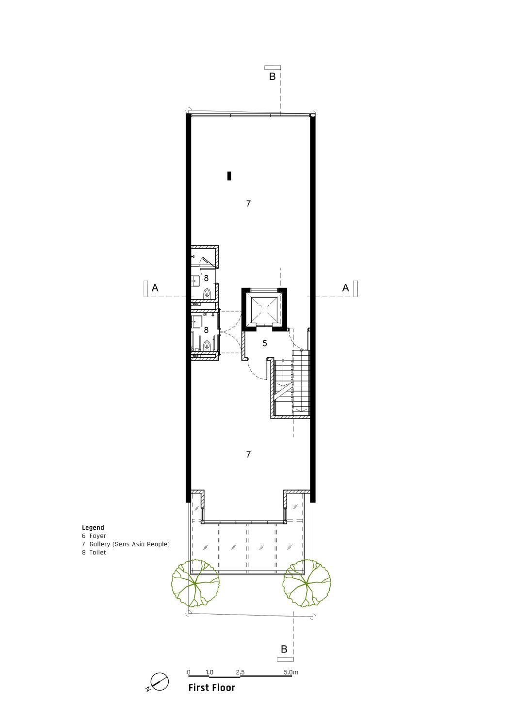
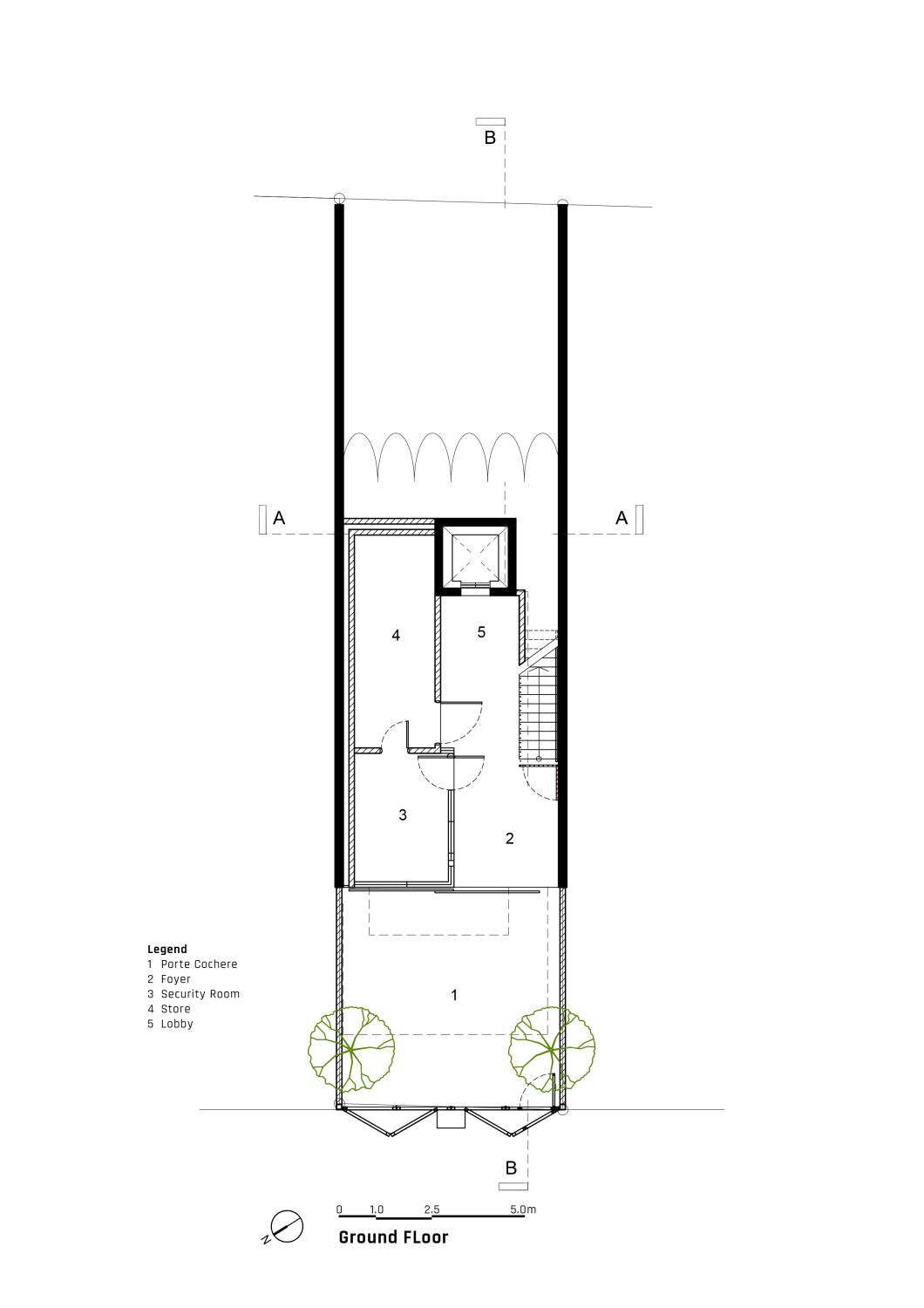
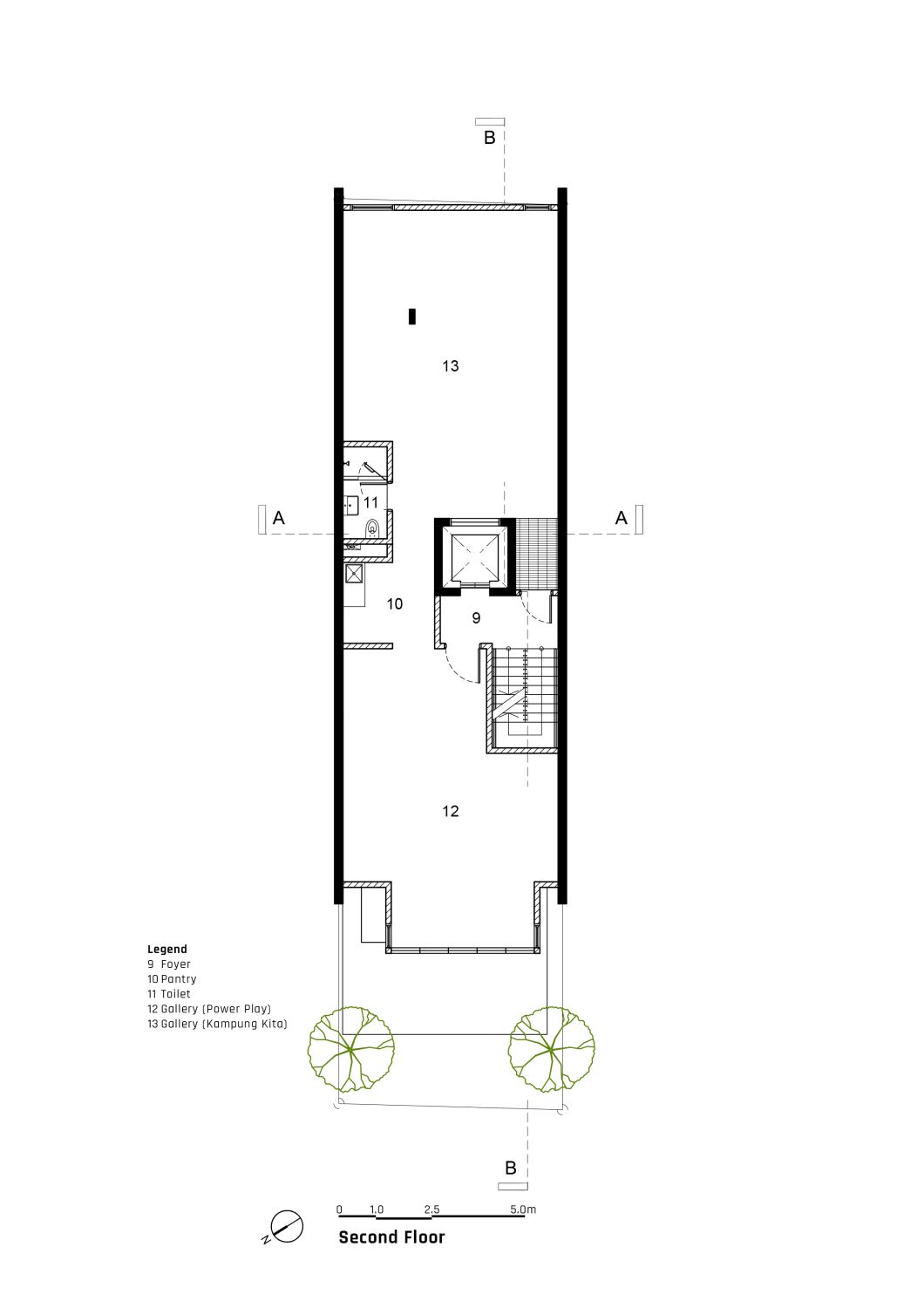
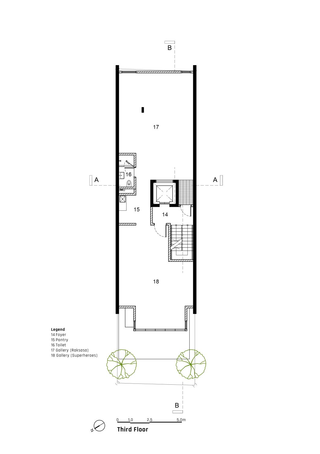
Ur-Mu is housed in a 1950s modernist four-storey walk-up apartment building comprising eight two-bedroom fats; the original layout remains intact, with additions including a lobby, roof-top garden, lift, washroom for the disabled, and new façade.
The industrial steel and r"ed brick entry and modern staggered glazed cubic form immediately stand out from the rest of the neighbours, but still pay homage to its surrounding scale. It ofers a glimpse of how the low-density urban townscape might evolve in the future. The museum, which displays the collector's eclectic taste, features over 100 artworks by artists mainly from Malaysia as well as from the surrounding region.
The experience at Ur-Mu has been designed to keep each visitor in mind, making it a space that is accessible to all. Each foor is divided into two sections. Categorised thematically, the artworks have been curated for the sections on every foor in accordance with their corresponding narratives. As visitors enter the lobby on the ground foor, a Banksy welcome mat on the ceiling provides an unconventional greeting.
The interior of the space is designed with the sculptures and artworks displayed along the wall of a sky-lit ceiling in accordance with Brâncuși's concept of spatial arrangements, creating "mobile groups" regularly rearranging the sculptures on display to demonstrate spatial relationships and to emphasise the interconnectivity of the pieces. Stepping outside onto the rooftop terrace, visitors will be in awe of the commissioned outdoor sculpture by Abdul Multhalib Musa titled Wing It! The large-scale sculpture complements the city skyline with a spectacular view of the Kuala Lumpur Tower and the bohemian neighbourhood below.
The rooftop garden is called "Made's Garden". Adopting Made's design philosophy of embracing architectural ideals and the splendour of tropical fora, coupled with breathtaking views, constitutes the success of Balinese gardens. In the interior section of the rooftop is the "Sculpture Lounge," featuring an eclectic selection of freestanding three-dimensional artworks, wall sculptures, and two-dimensional artworks.



loading......