Architecture Firm: O2 Design Atelier + Choo Poo Liang Architect
Architect: Edric CHOO Poo Liang
Year Completed: 2021
Land size: 9688.33 sq.m
Built up: 3,703.07 sq.m
Photographer: David Yeow Photography
Sentul Park is nestled within the extended park setting of Sentul Pak in Sentul West, Kuala Lumpur, Malaysia where the Federated Malay State Railway (FMSR) rail complexes were established in 1904. The century-old colonial building was formerly the headquarters of FMSR under British rule.
For years, this colonial building with its distinctive brick-and-concrete arched-colonnades façade stood prominently as a hollow shell amidst the leafy canopy of the park’s big old trees until YTL land Design Group spearheaded its restoration to create a unique atmosphere for a compatible new use as a modern office building. The brief to the architect was to ensure that building adaptations do not deviate materially from the building’s original architecture. The “new” must not overwhelm the “old” as ideally, both elements should coexist to express a fresh aesthetic to the building’s age and heritage.
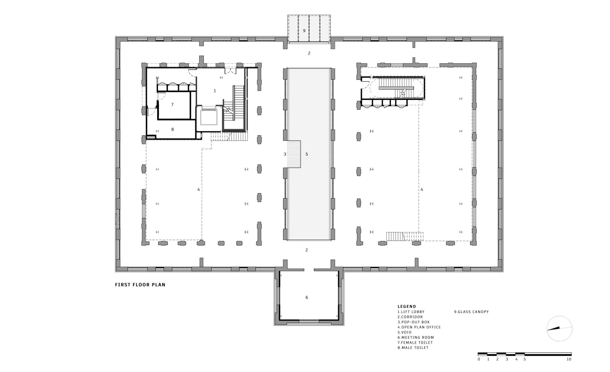
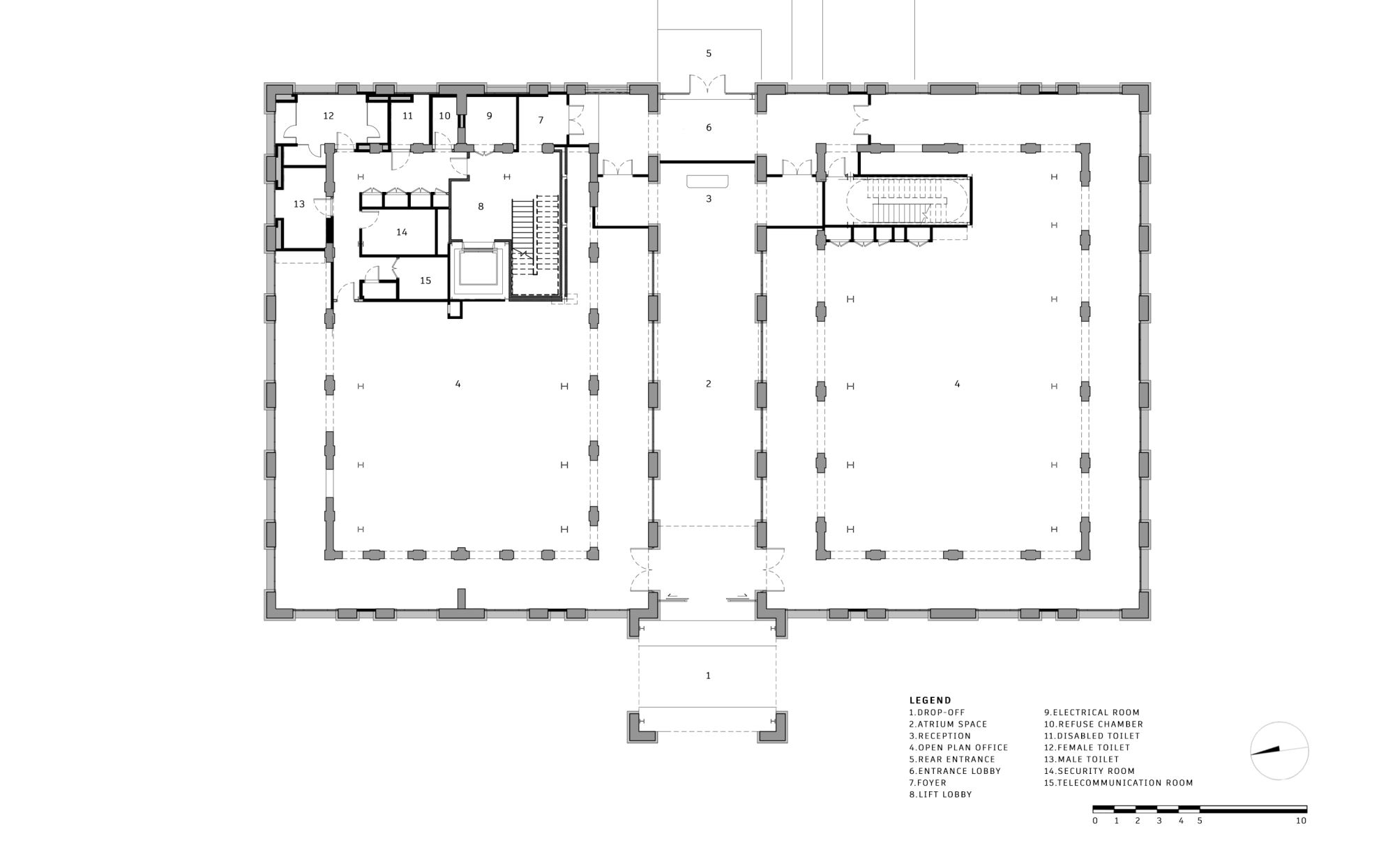
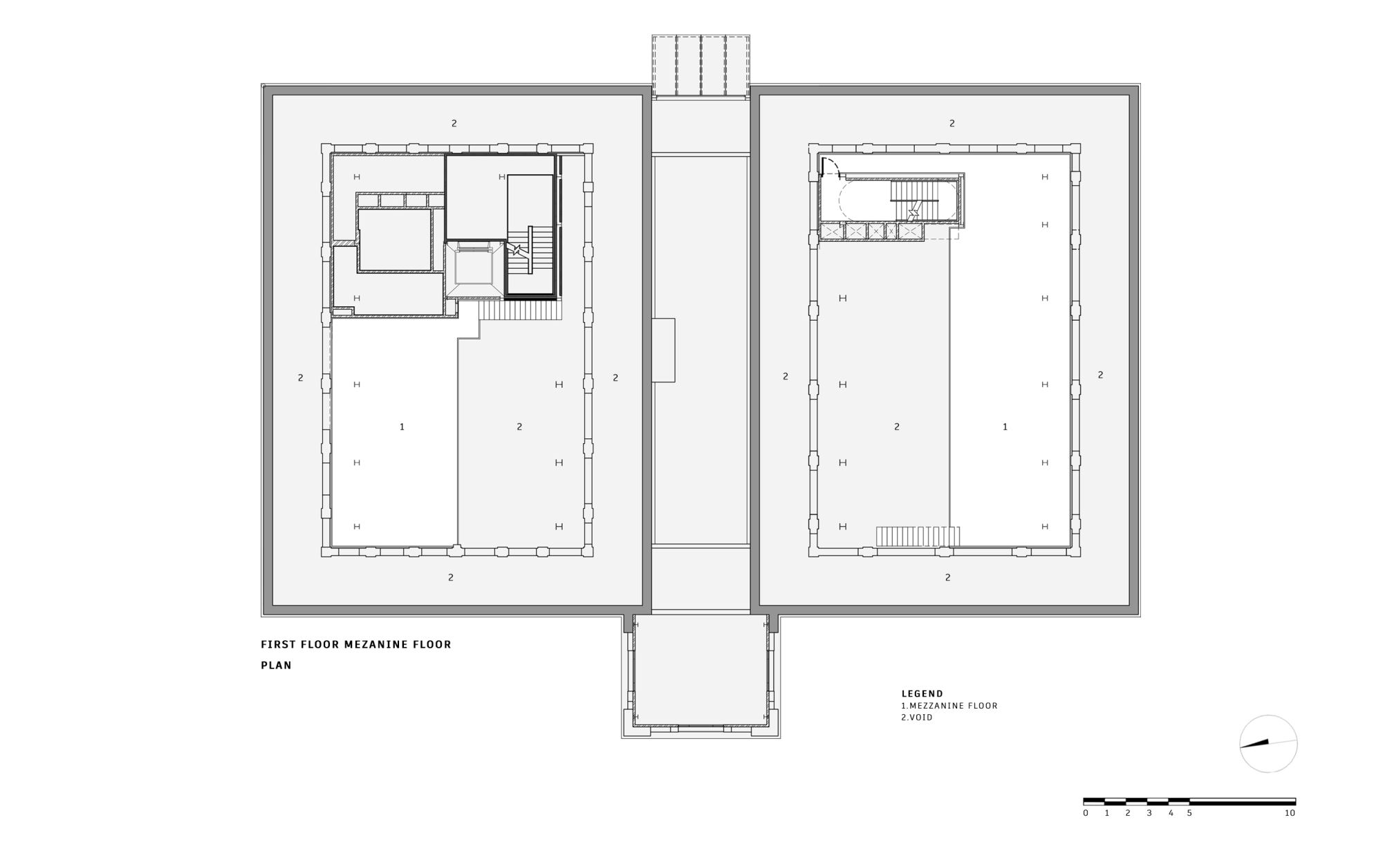
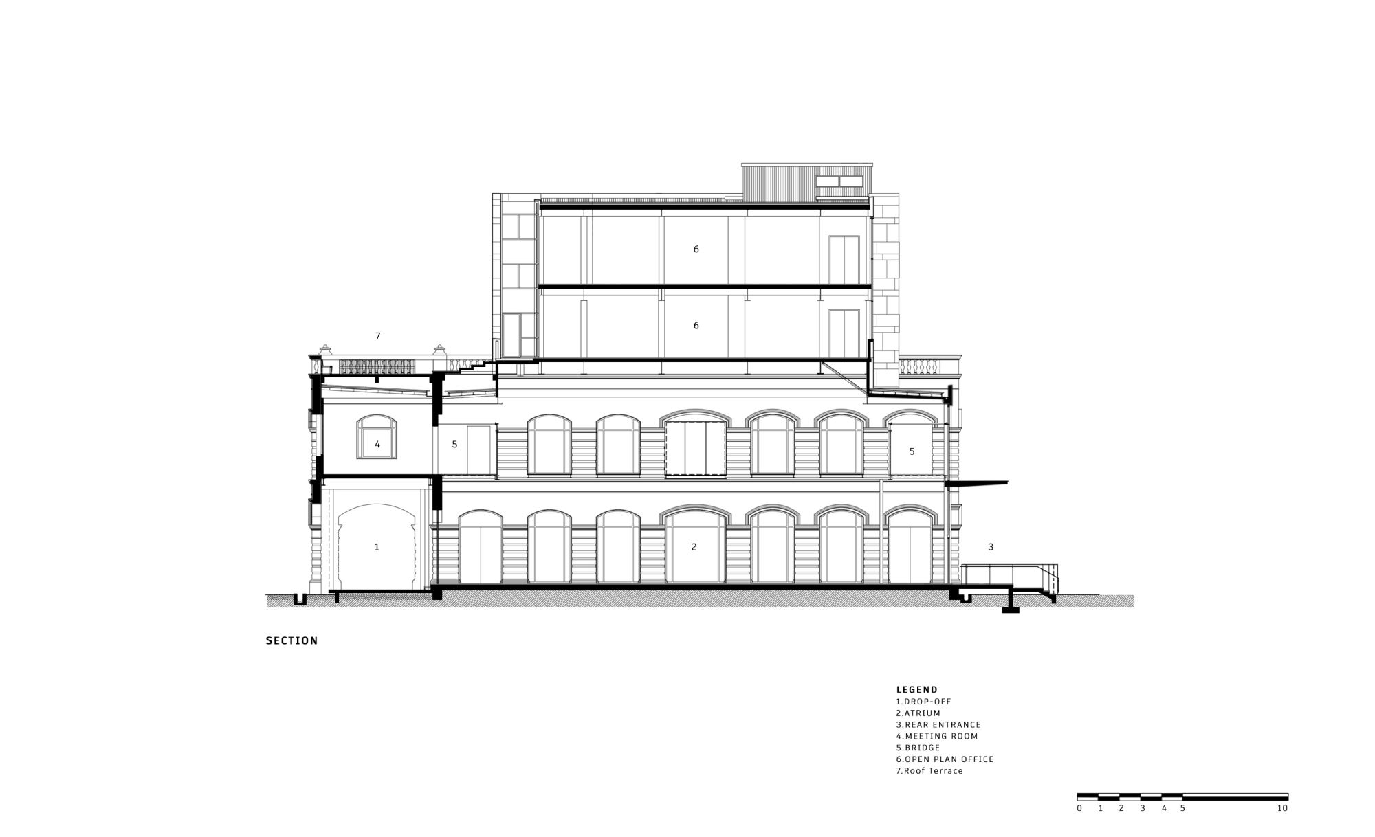
The original layout of the Sentul Works consists of 2 main spaces separated by a central double volume hallway. Adapting to the original symmetry of the building interior, the new free plan office spaces flanked around the original hallway now serving as a double volume central atrium. A bridge on the first floor links both office floor plates at both sides. Visual connection is established between tenants on the ground and first floor within the working environment without compromise on privacy. The interior of the office is planned as a flexible free plan, giving tenants maximum adaptability according to their working needs.
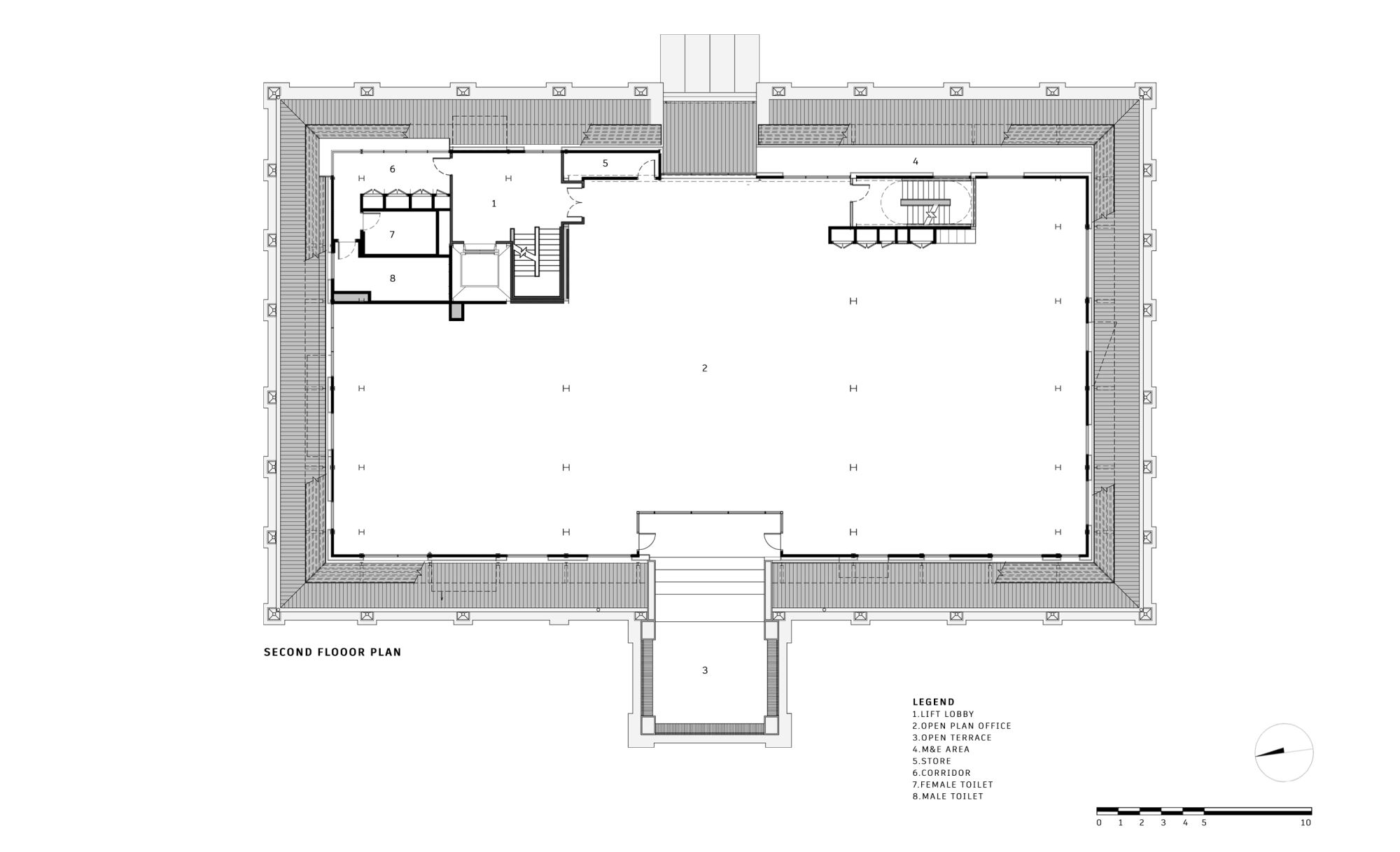
The new extended second and third floors form a new mass rising from the majestic colonial form at the base. Steel posts and beam structures supporting the new floor slabs lightly raised from the ground, well-integrated, and yet structurally independent from the colonial structure. This, at the same time, brought the architecture challenge of creating a relationship between old and new. The new mass is made recessed inwards from the main colonial block below as a means to preserve the scale and presence of the old.
Corten steel which is used as an external building surface for the projected new mass above the existing building structure blends harmoniously with the exposed steel frame skeleton of the adjacent old railway workshops. The Corten cladding gives a modern cutting edge modern outlook and yet embodies a rich warm texture that resonates with the surrounding old rustic material palettes.
A central glass curtain wall breaks the homogeneity of the Corten-clad new mass. The façade break enhances the quality of modern abstraction and conformity to the domineering and symmetrical colonial architecture below.
Office tenants are visually linked to the surrounding context by the window openings on the new corten-clad building skin. Tranquil greenery is brought into the office interior through thoughtfully craved-out window openings.
The overall gridline is generated by superimposing 3 grids include the original façade brick arched colonnades grid, an enlarged colonial brick laying pattern grid, and a new internal steel column grid.
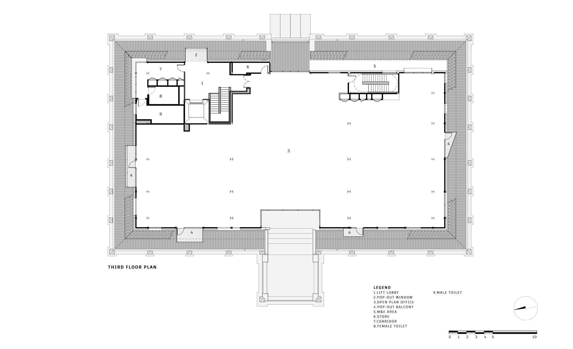
A number of balconies and bay windows are strategically added to some of the openings between the grid projecting towards the historical railway workshops to the north, the lush park setting to the west, the YTL land sales gallery to the south-west and the iconic soaring towers of The Fennel by YTL Land towards the east. The balconies and pop-out windows create surprises and contribute to the overall abstraction of the upper mass in contrast to the formal language of the colonial architecture below.



loading......