Architecture Firm: WOHA
Lead Architect: Richard Hassell
Year of Completion: December 2023
Land Area: 654.3 sq.m
Built-Up Area: 3392.66 sq.m
Photographer: Darren Soh / WOHA
21 Carpenter was awarded the 2025 President's Design Award, Design of the year.
Summary
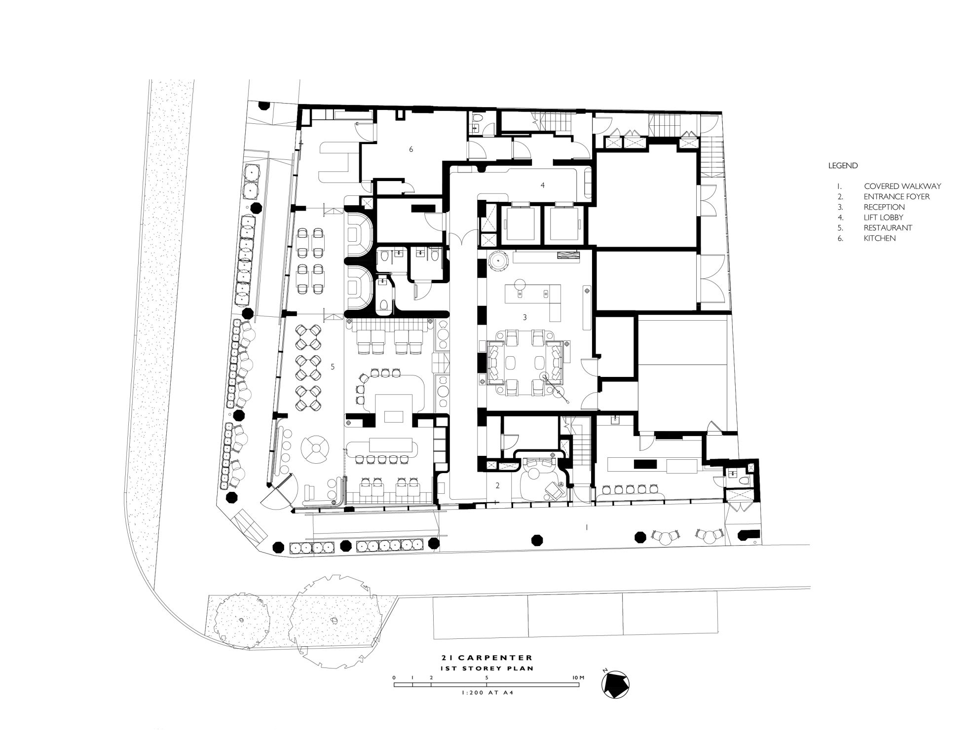
21 Carpenter is a heritage boutique hotel at the gateway to the historical Chinatown district. It extends to four conserved shophouses from 1936, adding a contemporary rear block. The design seeks to incorporate history, art, and sustainability in delightful and effective ways within the envelope-controlled heritage property.
Description
At 21 Carpenter, the client's brief called for the conversion of 4 conserved 1936 shophouses into a boutique hotel, adding a contemporary rear extension. The buildings were built for the headquarters of the Chye Hua Seng Wee Kee / Chye Soon Long remittance offce - one of the founders of Singapore's international fnance sector. The new design emphasizes history, art, sustainability, comfort, and community. Great effort went into researching the history of the heritage building and its context, then communicating this through design.
21 Carpenter is the only Depression-Era building in the precinct, and as such, the project had stricter heritage constraints than other post-war shophouses in the neighbourhood. Under the conservation guidelines, the street frontages of the building were to be preserved; however, the design additionally preserves the entire side block and reveals the back facade of the building, enabling the original building extent to be appreciated.
A rare three-tone Shanghai plaster was uncovered during restoration works and carefully restored over 3 years, including the original signage, railings, and relief panel. The Chengal foorboards, joists, and beams of the original structure were retained and reused in the project as fooring for the guest rooms and upcycled into furniture, paneling, and railings. The contemporary extension is wrapped in an aluminium art facade that includes poetic fragments from historical remittance letters, an emotional connection to modern travelers.
21 Carpenter is infused with plant life, bringing greenery into the neighbourhood and making the site greener than it ever had been in its 200-year history. The hotel has two landscaped terraces, greenery on its balconies, and planting along the covered walkway. Conservation harmonizes with other ambitions: the plants, solar panels, perforated facade, and hybrid cooling using fans maximize the environmental performance of the building, despite its restricted envelope.



loading......